中文
/
EN
关于奥翔
产品中心
新闻中心
典型案例
联系我们
English
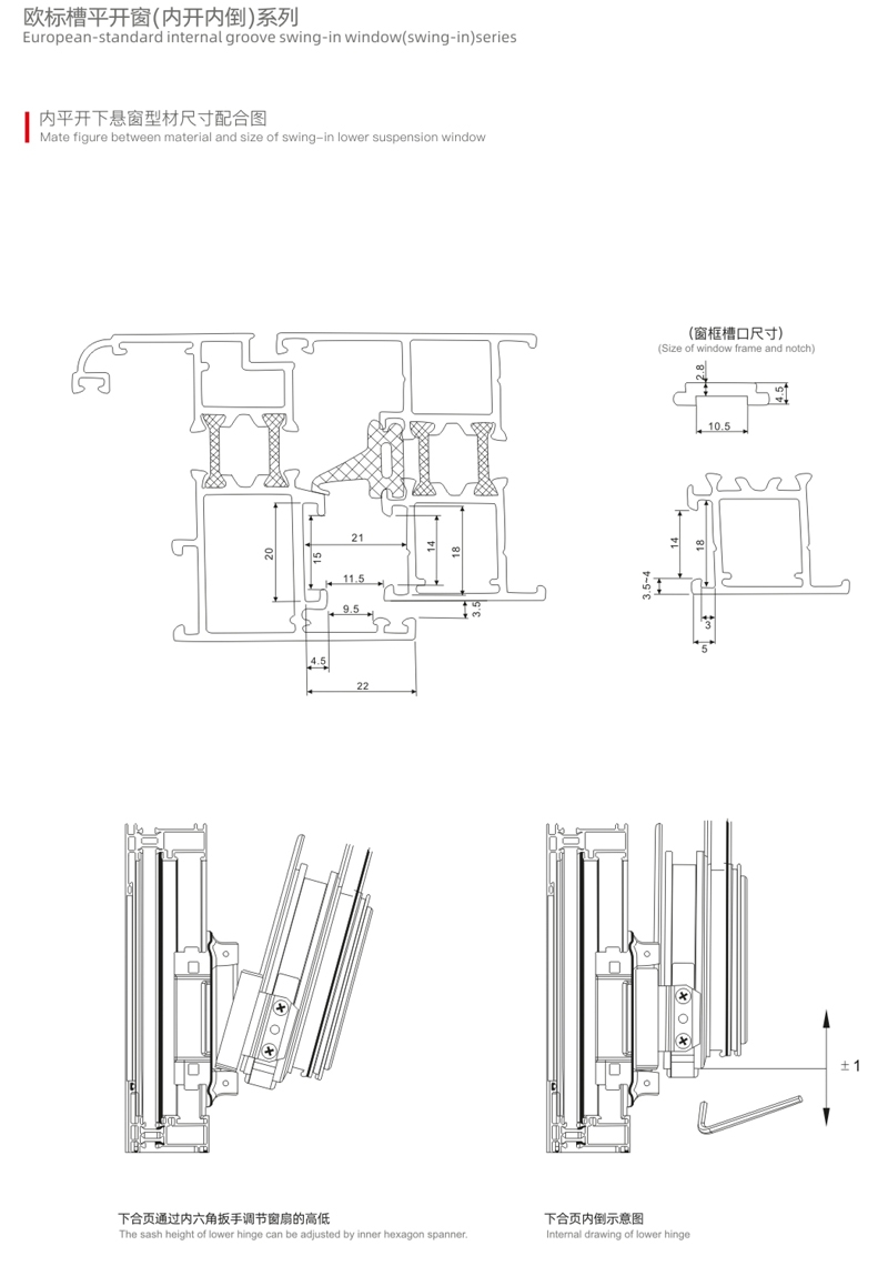
欧标槽内平开窗(内开内倒) --- 1
关于奥翔
|
联系我们
|
收藏我们
浙ICP备09043471号